Používame cookies

Súbory cookie a ďalšie technológie sledovania používame na zlepšenie vášho zážitku z prehliadania našich webových stránok, na to, aby sme vám zobrazovali prispôsobený obsah a cielené reklamy, na analýzu návštevnosti našich webových stránok a na pochopenie toho, odkiaľ naši návštevníci prichádzajú. Viac info

 

Výrobno - skladové priestory na predaj v Podvaží. Možnosť predaja celej firmy.

Mestská časť: Podvažie
Obec: Považská Bystrica
Okres: Považská Bystrica
Kraj: Trenčiansky kraj
Druh: Priestory
Typ: Predaj
Typ objektu: Priestor pre výrobu
Cena v RK

Popis nehnuteľnosti

Ponúkame na predaj kompletne zrekonštruované výrobno-skladové priestory nachádzajúce sa v lokalite Podvažie, okres Považská Bystrica, s výbornou dostupnosťou a možnosťou okamžitého využívania.

Objekt je situovaný na pozemkoch s celkovou výmerou 634 m², pričom zastavaná plocha hál je 568 m². Ide o murovanú stavbu, ktorá prešla kompletnou rekonštrukciou a je vo veľmi dobrom technickom stave.

Výrobné a skladové priestory majú rôznu svetlú výšku stropov v jednotlivých častiach objektu, v rozmedzí od 3,5 m do 4 m, čo umožňuje flexibilné využitie podľa potrieb nového majiteľa. Vykurovanie objektu je riešené kombináciou elektrického kúrenia a tepelného čerpadla.

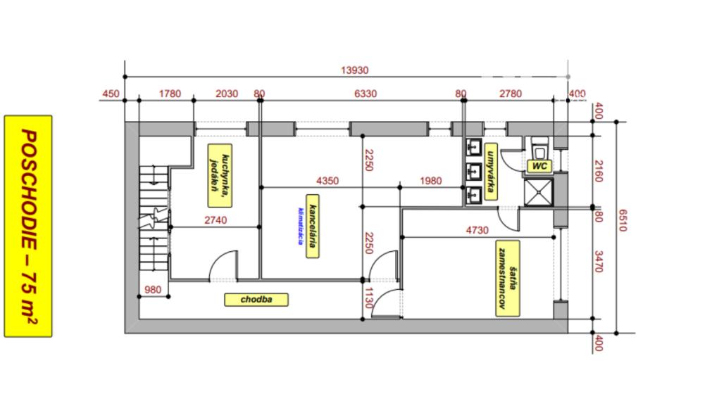
Súčasťou objektu je aj administratívna časť a kompletné zázemie (šatne, sociálne zariadenia) o celkovej výmere 75 m², čo zabezpečuje komfortné podmienky pre zamestnancov aj vedenie firmy.

Priestory sú ideálne vhodné pre ľahkú výrobu, skladovanie, logistiku alebo remeselnú činnosť. V minulosti boli úspešne využívané ako stolárska výroba, čo potvrdzuje ich praktické dispozičné riešenie a funkčnosť.

Možnosť predaja aj len časti priestorov, resp. zadnej samostatnej haly.

Je tu tiež veľmi dobré dopravné napojenie na cestu 1. triedy, ako aj na dialničný privádzač. Prístup veľkými nákladnými autami nie je problém.

Nehnuteľnosť je vhodná na vlastné podnikanie aj ako investičná príležitosť.

Veľmi zaujimavá je tu tiež možnosť predaja celej firmy, ktorá má v majteku predmetné nehnuteľnosti.

Viac info: Ing. Peter Smatana, tel.: 0905 123 776

Vlastnosti

Status:
aktívne
Vlastníctvo:
korporácia
Úžitková plocha:
480 m2
Zastavaná plocha:
568 m2
Podlahová plocha:
480 m2
Skladová plocha:
420 m2
Stav:
úplne prerobený
Rok poslednej rekonštrukcie:
2020
Celková plocha:
634 m2
Inžinierske siete:
áno
Voda:
áno
Elektrika:
áno
Kanalizácia:
áno
Voda - na pozemku:
áno
Elektrika - na pozemku:
áno
Kanalizácia - na pozemku - kanalizácia:
áno
Vykurovanie - lokálne:
áno
Internet:
áno
Status:
aktívne
Vlastníctvo:
korporácia
Úžitková plocha:
480 m2
Zastavaná plocha:
568 m2
Podlahová plocha:
480 m2
Skladová plocha:
420 m2
Stav:
úplne prerobený
Rok poslednej rekonštrukcie:
2020
Celková plocha:
634 m2
Inžinierske siete:
áno
Voda:
áno
Elektrika:
áno
Kanalizácia:
áno
Voda - na pozemku:
áno
Elektrika - na pozemku:
áno
Kanalizácia - na pozemku - kanalizácia:
áno
Vykurovanie - lokálne:
áno
Internet:
áno

Informatívna úverová kalkulačka

Pozrieť na mape

Radi Vám poradíme

Podobné nehnuteľnosti