Používame cookies

Súbory cookie a ďalšie technológie sledovania používame na zlepšenie vášho zážitku z prehliadania našich webových stránok, na to, aby sme vám zobrazovali prispôsobený obsah a cielené reklamy, na analýzu návštevnosti našich webových stránok a na pochopenie toho, odkiaľ naši návštevníci prichádzajú. Viac info

 

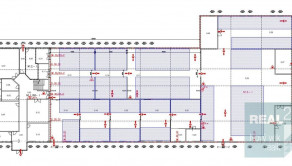
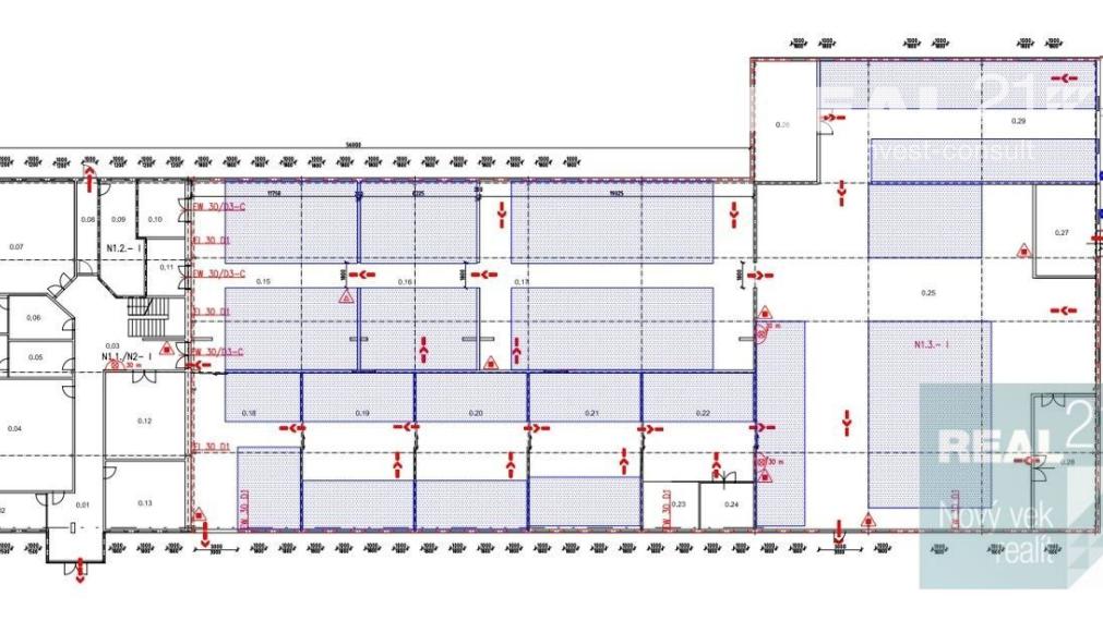
Ponúkame na prenájom výrobné a skladové priestory v modernej hale o ploche 2249 m2.

Interné ID: 420775
Ulica: Považské Podhradie
Obec: Považská Bystrica
Okres: Považská Bystrica
Kraj: Trenčiansky kraj
Druh: Objekty
Typ: Prenájom
Typ objektu: Sklady a haly
72 €/rok

Popis nehnuteľnosti

Ponúkame na prenájom výrobné a skladové priestory v modernej hale o celkovej ploche 2249 m2, hala je rozdelená na viacero častí, pričom je možné prenajať halu ako celok, alebo aj menšiu časť po dohode s majiteľom. Aktuálne je časť haly prenajatá. Súčasťou objektu je tiež administratívna časť, ako aj sociálne zázemie ako sprchy, šatne, toalety, či jedáleň. Hala má svetlú výšku v rozmedzí 6-8 m. Všetky vonkajšie plochy okolo haly sú spevnené, je tu približne 20 parkovacích miest. Kúrenie je riešené plynovým kotlom. Záujem je len o dlhodobý prenájom. Cena je stanovená na úrovni 72m,-/m2/rok + DPH a energie. Pri záujme o celú halu na dlhodobý prenájom min. na 5 rokov je možná zaujímavá zľava. Viac info Ing. Peter Smatana, tel.: 0905 123 776.

Vlastnosti

Status:
aktívne
Vlastníctvo:
osobné
Stav:
čiastočne prerobený
Úžitková plocha:
2249 m2
Balkón:
nie
Parkovanie:
áno
Zateplený objekt:
nie
Terasa:
nie
Status:
aktívne
Vlastníctvo:
osobné
Stav:
čiastočne prerobený
Úžitková plocha:
2249 m2
Balkón:
nie
Parkovanie:
áno
Zateplený objekt:
nie
Terasa:
nie

Pozrieť na mape

Radi Vám poradíme

Podobné nehnuteľnosti